
41 Black Watch Avenue
Oromocto, NB
Welcome to Our Newest Modern Building in Oromocto – Opened February 1, 2025!
We are thrilled to introduce Oromocto's most technology advanced and modern residential building, designed for comfort, convenience, and security. This non-smoking building offers spacious, thoughtfully designed units and state-of-the-art amenities to enhance your living experience.
Amenities
Spacious, open concept, modern living
Heat pumps with Air Conditioning
In-suite laundry
Stainless steel appliances, including dishwashers and microwaves
Large islands with breakfast bar seating
Walk-thru master closets
Comfort-height toilets
Large balconies
Blinds
Secure building
Elevator
Gym or Social Room
Non-smoking, quiet building
Storage Units*
Underground Parking*
*based on availability
Floorplans
ONE BEDROOM UNITS
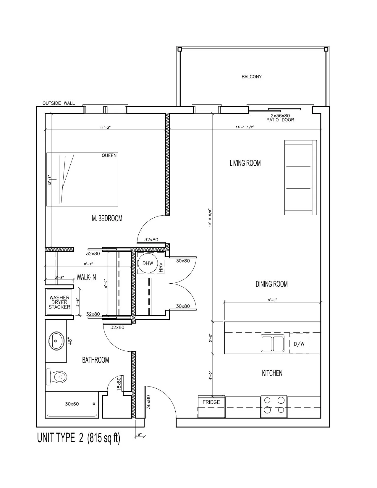
Unit Type 02
Bedrooms/Bathrooms
1 BR / 1 BA
Size (Sq. Ft.)
815
Unit Type 05
Bedrooms/Bathrooms
1 BR / 1 BA + Storage
Size (Sq. Ft.)
900
Unit Type 06
Bedrooms/Bathrooms
1 BR / 1 BA
Size (Sq. Ft.)
810
TWO BEDROOM UNITS
Unit Type 01
Bedrooms/Bathrooms
2 BR / 1 BA
Size (Sq. Ft.)
1080
Unit Type 03
Bedrooms/Bathrooms
2 BR / 2 BA
Size (Sq. Ft.)
1165
Unit Type 04 - 1st & 2nd Floor
Bedrooms/Bathrooms
2 BR / 1 BA
Size (Sq. Ft.)
1165
Unit Type 04 - 3rd & 4th Floor
Bedrooms/Bathrooms
2 BR / 1 BA
Size (Sq. Ft.)
1165
Unit Type 07
Bedrooms/Bathrooms
2 BR / 1 BA
Size (Sq. Ft.)
1120